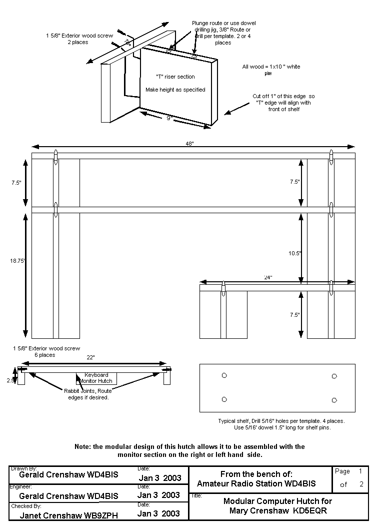
My Daughter KD5EQR asked me while home on Christmas break to make her a hutch for her desk at Texas Tech. The hutch outlined here is the result of that request. Easy to assemble and transport and made out of 1x10 pine.


Hutch assembled with monitor on left
Hutch assembled with monitor on right